T308、T301電、手動矩(圓)形多葉調節蝶閥的詳細資料:
|
用途Use T308(方形)、T301(圓形)系列多葉調節蝶閥廣泛應用于冶金、化工、建材、電站、玻璃等行業的通風、環保工程的含塵冷風或熱風氣體管道中,特別適用于風機的進出口作為風量調節或啟閉裝置,從而減少風機的啟動力矩,可與各種執行器配套使用組成不同性能裝置。
特點 Characteristic
多葉調節蝶閥中的閥體、閥板采用優質碳鋼或不銹鋼板焊接而成。具有結構簡單、流阻小、重量輕、轉動靈活、使用壽命長、操作維護方便等優點。
主要性能規范 Specifications
| 公稱壓力 |
0.05MPa |
| 額定轉角 |
0~90° |
| 泄漏率 |
≤5%(低泄漏率型≤2%) |
| 工作溫度 |
t≤180℃ |
| 適用介質 |
空氣、煙氣、含塵氣體等 | 電動裝置主要參數 Main parameter of the electronic device
| 產 品 型 號 |
T308s、T301s |
T308b、T301b |
T308a、T301a |
| 控 制 特 點 |
手動 ≤DN400或400×400 時為手柄傳動, ≥DN400或400×400 時為蝸輪蝸桿傳動 |
兩為開關型 |
調節型 |
| 電動裝置型號 |
Q型(或其他) |
ZKJ(或其他) |
| 電 壓 |
AC380V (按所選裝置定) |
AV220V或AV380V (按所選裝置定) |
| 輸 入 型 號 |
|
DC0~10(4~20)mA (用戶自定) | 主要零件材料 Parts material
| 閥 體 |
優 質 碳 鋼 |
| 閥 板 |
優 質 碳 鋼 |
| 閥 軸 |
不 銹 鋼 |
| 填 料 |
柔 性 石 墨 |
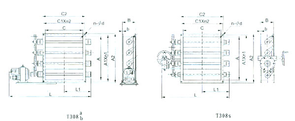
方矩形多葉調節蝶閥外形結構簡:

電動圓形多葉調節蝶閥外形結構簡圖:
 安裝使用及配套說明 Install and use
1.手柄式結構:閥桿露出的方頭頂端上刻有溝槽,當順時針方向扳動時,溝槽現與管路平行為閥開,反之為閥關。 2.蝸輪式或電動式結構在手動操作時,不得在手輪上增加加長桿。手輪順時針旋轉時為閥開,反之為閥關。 3.本閥可水平或垂直安裝,但閥軸應處于水平位置。傳動裝置不允許做起吊用,并嚴禁碰撞。 4.電動執行機構技術參數及接線原理圖請參閱電動執行機構說明書。 5.需附件請注明(伺服放大器、電動操作器、控制箱、配法蘭等)。
電、手動方矩形多葉調節蝶閥主要外形及連接尺寸表
|
| A×C |
A1×n1 |
C1×n2 |
A2×C2 |
n-фd |
B |
L1 |
電 動 |
手 動 |
| L |
電動裝置 |
L |
手動裝置 |
| 160×320 |
100×2 |
120×3 |
266×386 |
10-ф12 |
210 |
240 |
890 |
ZKJ-210 |
610 |
手
柄
式 |
| 200×320 |
120×2 |
120×3 |
266×386 |
10-ф12 |
240 |
890 |
610 |
| 200×400 |
120×2 |
110×4 |
266×466 |
12-ф12 |
280 |
930 |
690 |
| 200×500 |
120×2 |
135×4 |
266×566 |
12-ф12 |
330 |
1020 |
790 |
| 250×250 |
145×2 |
145×2 |
316×316 |
8-ф12 |
210 |
830 |
550 |
| 250×320 |
145×2 |
120×3 |
316×386 |
10-ф12 |
240 |
890 |
610 |
| 250×400 |
145×2 |
115×4 |
316×466 |
12-ф12 |
280 |
930 |
690 |
| 250×500 |
145×2 |
135×4 |
316×565 |
12-ф12 |
330 |
1020 |
790 |
| 250×630 |
145×2 |
138×5 |
316×696 |
14-ф15 |
395 |
1150 |
820 |
| 320×320 |
120×3 |
120×3 |
386×386 |
12-ф12 |
240 |
890 |
610 |
| 400×320 |
147×3 |
120×3 |
466×386 |
12-ф12 |
240 |
890 |
610 |
| 400×400 |
147×3 |
147×3 |
466×466 |
12-ф12 |
280 |
930 |
690 |
S01 |
| 500×320 |
135×4 |
120×3 |
566×386 |
14-ф12 |
240 |
890 |
610 |
| 500×400 |
135×4 |
147×3 |
566×466 |
14-ф12 |
280 |
930 |
690 |
| 500×500 |
135×4 |
135×4 |
566×566 |
16-ф12 |
310 |
1020 |
820 |
| 630×320 |
138×5 |
127×3 |
719×409 |
16-ф12 |
220 |
240 |
890 |
ZKJ-310 |
690 |
| 630×400 |
138×5 |
115×4 |
719×489 |
18-ф12 |
280 |
1045 |
860 |
| 630×500 |
138×5 |
140×4 |
728×59 |
18-ф15 |
375 |
1245 |
980 |
| 630×630 |
138×5 |
138×5 |
728×728 |
20-ф15 |
440 |
1375 |
1110 |
| 800×320 |
123×7 |
127×3 |
898×418 |
20-ф15 |
210 |
240 |
890 |
ZKJ-210 |
690 |
| 800×400 |
123×7 |
115×4 |
898×498 |
22-ф15 |
280 |
930 |
860 |
| 800×500 |
123×7 |
140×4 |
898×598 |
22-ф15 |
330 |
1245 |
ZKJ-310 |
960 |
| 800×630 |
123×7 |
138×5 |
898×728 |
24-ф15 |
440 |
1375 |
1180 |
| 800×700 |
123×7 |
127×6 |
898×798 |
26-ф15 |
475 |
1590 |
ZKJ-410 |
1280 |
S02 |
| 800×800 |
123×7 |
123×7 |
898×898 |
28-ф15 |
525 |
1690 |
1380 |
| 960×840 |
128×8 |
129×7 |
1058×938 |
30-ф15 |
545 |
1735 |
1420 |
| 1000×320 |
133×8 |
127×3 |
1098×398 |
22-ф15 |
285 |
1065 |
ZKJ-310 |
700 |
S01 |
| 1000×400 |
133×8 |
120×4 |
1098×498 |
24-ф15 |
325 |
1145 |
780 |
| 1000×500 |
133×8 |
140×4 |
1098×598 |
24-ф15 |
375 |
1245 |
880 |
| 1000×630 |
133×8 |
138×5 |
1098×728 |
26-ф15 |
440 |
1520 |
ZKJ-410 |
1200 |
S02 |
| 1000×800 |
133×8 |
123×7 |
1098×898 |
30-ф15 |
525 |
1690 |
1370 |
| 1000×1000 |
133×8 |
133×8 |
1100×1100 |
32-ф15 |
625 |
1890 |
1570 |
| 1250×400 |
131×10 |
115×4 |
1348×498 |
28-ф15 |
220 |
325 |
1290 |
910 |
S03 |
| 1250×500 |
131×10 |
140×4 |
1348×598 |
28-ф15 |
375 |
1390 |
1010 |
| 1250×630 |
131×10 |
138×5 |
1348×728 |
30-ф15 |
440 |
1520 |
1140 |
| 1250×800 |
131×10 |
123×7 |
1348×898 |
34-ф15 |
525 |
1690 |
1310 |
| 1250×1000 |
131×10 |
133×8 |
1348×1098 |
36-ф15 |
625 |
1890 |
1510 |
| 1280×1120 |
134×10 |
131×9 |
1380×1220 |
38-ф18 |
685 |
2010 |
1630 |
| 1280×1400 |
134×10 |
133×11 |
1380×1500 |
42-ф18 |
825 |
2090 |
1910 |
| 1600×500 |
139×12 |
140×4 |
1710×600 |
32-ф15 |
375 |
1390 |
1010 |
| 1600×630 |
139×12 |
138×5 |
1710×730 |
34-ф15 |
440 |
1520 |
1140 |
| 1600×800 |
139×12 |
123×7 |
1710×900 |
38-ф18 |
525 |
1690 |
1310 |
| 1600×1000 |
139×12 |
133×8 |
1710×1100 |
40-ф18 |
625 |
1990 |
ZKJ-510 |
1560 |
S04 |
| 1600×1250 |
139×12 |
131×10 |
1710×1350 |
44-ф18 |
750 |
2240 |
1810 |
| 1600×1280 |
139×12 |
134×10 |
1710×1380 |
44-ф18 |
765 |
2270 |
1840 |
| 1800×1300 |
135×14 |
139×10 |
1960×1460 |
48-ф18 |
775 |
2290 |
|
1870 |
|
| 2000×800 |
129×16 |
123×7 |
2100×900 |
46-ф18 |
525 |
1790 |
1360 |
| 2000×1000 |
129×16 |
133×8 |
2100×1100 |
48-ф18 |
625 |
1990 |
1560 | 電、手動方矩形多葉調節蝶閥主要外形及連接尺寸表
| A×C |
A1×n1 |
C1×n2 |
A2×C2 |
n-фd |
B |
L1 |
電 動 |
手 動 |
| L |
電動裝置 |
L |
手動裝置 |
| 2000×1250 |
129×16 |
131×10 |
2100×1350 |
52-ф18 |
220 |
750 |
2240 |
ZKJ-610 |
1810 |
S05 |
| 2000×1200 |
129×16 |
129×10 |
2160×1360 |
52-ф18 |
725 |
2190 |
1760 |
| 2000×1400 |
129×16 |
136×11 |
2160×1560 |
54-ф18 |
850 |
2440 |
2010 |
| 2250×1600 |
2340×1690 |
139×11 |
2410×1760 |
54-ф18 |
950 |
2860 |
2280 |
| 2400×1800 |
2490×1890 |
135×14 |
1560×1960 |
64-ф18 |
1050 |
3060 |
2480 |
| 2520×1800 |
2610×1890 |
135×14 |
2680×1960 |
64-ф18 |
1050 |
3060 |
2480 | 電、手動圓形多葉調節蝶閥主要外形及連接尺寸表
| DN |
D |
D1 |
n-фd |
b |
B |
電動多葉蝶閥 |
手動多葉蝶閥 |
| L |
電動裝置 |
L |
手動裝置 |
| 355 |
435 |
395 |
8-ф12 |
6 |
300 |
545 |
ZKJ-210 |
490 |
S01 |
| 400 |
500 |
450 |
8-ф12 |
8 |
575 |
520 |
| 450 |
550 |
500 |
8 |
600 |
550 |
| 500 |
620 |
560 |
12-ф12 |
8 |
635 |
585 |
| 560 |
680 |
620 |
8 |
665 |
615 |
| 600 |
720 |
660 |
8 |
685 |
635 |
| 630 |
750 |
690 |
10 |
700 |
650 |
| 650 |
770 |
710 |
10 |
710 |
660 |
| 710 |
830 |
770 |
16-ф12 |
10 |
765 |
ZKJ-310 |
715 |
S02 |
| 750 |
870 |
810 |
10 |
785 |
735 |
| 780 |
900 |
840 |
10 |
500 |
735 |
| 800 |
920 |
860 |
10 |
350 |
510 |
760 |
| 840 |
960 |
900 |
10 |
530 |
780 |
| 900 |
1030 |
970 |
16-ф15 |
10 |
905 |
ZKJ-410 |
835 |
S03 |
| 1000 |
1130 |
1070 |
20-ф15 |
12 |
955 |
885 |
| 1040 |
1160 |
1100 |
12 |
970 |
900 |
| 1100 |
1230 |
1170 |
12 |
1005 |
935 |
| 1120 |
1250 |
1190 |
24-ф15 |
12 |
1015 |
945 |
| 1170 |
1300 |
1240 |
12 |
1040 |
970 |
| 1200 |
1330 |
1270 |
12 |
1055 |
985 |
| 1250 |
1380 |
1310 |
12 |
1080 |
1010 |
| 1300 |
1430 |
1370 |
12 |
400 |
1105 |
1035 |
| 1400 |
1530 |
1470 |
16 |
1255 |
ZKJ-510 |
1140 |
S04 |
| 1500 |
1630 |
1570 |
28-ф15 |
16 |
1305 |
1190 |
| 1600 |
1740 |
1680 |
16 |
1360 |
1250 |
| 1800 |
1940 |
1880 |
16 |
1460 |
1350 |
| 2000 |
2140 |
2080 |
32-ф15 |
20 |
1560 |
1450 |
| 2200 |
2340 |
2280 |
20 |
500 |
1660 |
1550 |
| 2400 |
2540 |
2480 |
36-ф15 |
20 |
1760 |
1650 |
| 2500 |
2640 |
2580 |
20 |
1810 |
1700 |
| 2600 |
2740 |
2680 |
20 |
1860 |
1750 |
| 2800 |
2940 |
2880 |
20 |
2050 |
ZKJ-610 |
1850 |
S05 |
| 3000 |
3140 |
3080 |
40-ф15 |
20 |
2150 |
1950 |
| 3200 |
3340 |
3280 |
44-ф15 |
20 |
2250 |
2050 | | |